
Jest to chyba najbardziej wyczekiwana przez mieszkańców gminy Oborniki inwestycja. Mowa o nowym budynku Obornickiego Ośrodka Kultury, który ma spełnić oczekiwania nie tylko funkcjonalne, ale także estetyczne oborniczan. Dlatego też podjęcie decyzji o ostatecznym jego kształcie nie należało do łatwych. Po wykonaniu analizy funkcjonalnej, urząd ogłosił konkurs na koncepcję nowego ośrodka. Pod koniec września wpłynęły dwie propozycje.
Obie bardzo ciekawe, spełniające oczekiwania pod względem funkcjonalności i dostępności dla mieszkańców, różniące się przede wszystkim architekturą zewnętrzną. Burmistrz Tomasz Szrama po zapoznaniu się z koncepcjami powołał komisję składającą się z budowlańców i radnych, którzy zapoznali się z projektami i dodatkowo poprosili o drobne korekty techniczne.
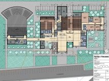
Ostatecznie wybrano koncepcję Rafała Mysiaka, doświadczonego architekta, który jest autorem ciekawych realizacji architektonicznych http://homeofhouses.com/. Nowy budynek zlokalizowany będzie w miejscu istniejącego ośrodka, który z powodu złego stanu technicznego zostanie rozebrany. W budynku znajdzie się m.in. sala widowiskowa na 400 osób z ruchomą widownią, sale warsztatowe, sala kinowa, cześć gastronomiczna oraz duży hol, który można będzie wykorzystać na cele reprezentacyjne.
Obiekt zaskakiwał będzie także ciekawym rozwiązaniem architektonicznym, które swoim kształtem ma przypominać właśnie „Dom” Całość inwestycji szacuje się na ok 15-20 mln zł. W tegorocznym budżecie Gminy Oborniki zaplanowano środki na realizację rozpoczynającego się właśnie I etapu tej inwestycji.
- Nowy budynek Ośrodka Kultury ma służyć mieszkańcom przez wiele lat, dlatego podjęcie decyzji o jego kształcie nie było wcale prostą sprawą. Przy wyborze koncepcji musieliśmy wziąć pod uwagę funkcjonalność budynku oraz walory architektoniczne, tak aby stał się naszą długo wyczekiwaną perełką – mówi Tomasz Szrama, burmistrz Obornik.
(źródło: oborniki.pl)







Serwis pojezierze24.pl nie ponosi odpowiedzialności za treść komentarzy i opinii. Prosimy o zamieszczanie komentarzy dotyczących danej tematyki dyskusji. Wpisy niezwiązane z tematem, wulgarne, obraźliwe, naruszające prawo będą usuwane.
Artykuł nie ma jeszcze komentarzy, bądź pierwszy!